Zpět na ceníkByt C2.01.4
Byt C2.01.4
Rezervace
Rezervace
30 128 360 Kč s DPH
4+kkDispozice
117 m²Celková plocha
1. NPPodlaží
Východ-západOrientace
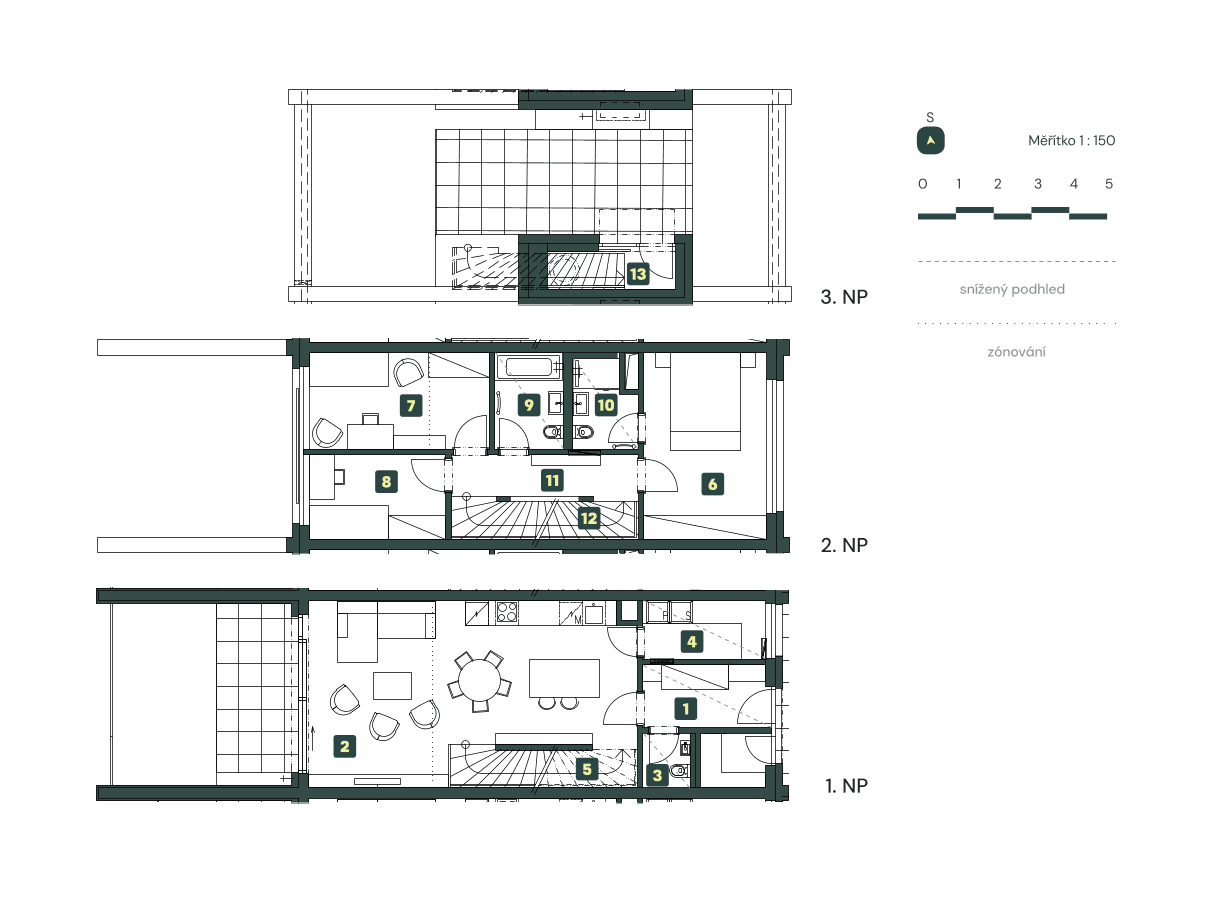
PodlažíC2 | 1
Dispozice4+kk
Celková plocha117 m²
Užitná plocha111.9 m²
Terasa70.9 m²
Sklep2PP-SK15
Číslo parkovacího stání2PP-GS044
KlimatizaceANO
RekuperaceNE
Zařízení ve standarduModern

Pohled

schéma podlaží

Situace

Mohlo by se vám líbit

A1.01.1
9 685 000 Kč
Rezervovaný
1. NPPodlaží
2+kkDispozice
39.6 m²Celková plocha
7.6 m²Balkon
-Terasa

A1.01.2
9 904 000 Kč
Rezervovaný
1. NPPodlaží
2+kkDispozice
44.5 m²Celková plocha
7.6 m²Balkon
-Terasa

A1.01.3
13 069 000 Kč
Volný
1. NPPodlaží
2+kkDispozice
47.4 m²Celková plocha
-Balkon
20.4 m²Terasa
Příslušenství
Výhodné financování
Stačí uhradit 15 %
z kupní ceny a
zbytek doplatit
až po dokončení.
Promyšlené financování, které přináší jistotu i klid při rozhodování o novém domově.
Kontaktujte nás
Zaujal vás náš projekt Delarg? Kontaktujte nás pro více informací nebo rezervaci osobní schůzky.


