Zpět na ceníkByt C1.05.1
Byt C1.05.1
Volný
Volný
14 555 040 Kč s DPH
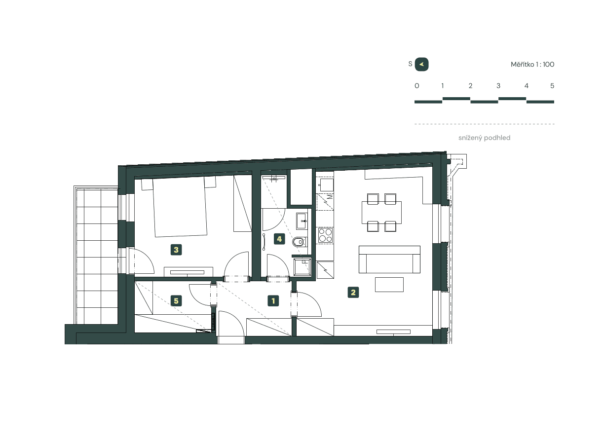
2+kkDispozice
62.1 m²Celková plocha
5. NPPodlaží
Server-jihOrientace
PodlažíC1 | 5
Dispozice2+kk
Celková plocha62.1 m²
Užitná plocha57.3 m²
Balkon7.3 m²
Sklep3PP-SK066
Číslo parkovacího stání3PP-GS128
KlimatizaceANO
RekuperaceANO
Zařízení ve standarduICONIC

Pohled

schéma podlaží

Situace

Mohlo by se vám líbit

A1.01.1
9 685 000 Kč
Rezervovaný
1. NPPodlaží
2+kkDispozice
39.6 m²Celková plocha
7.6 m²Balkon
-Terasa

A1.01.2
9 904 000 Kč
Rezervovaný
1. NPPodlaží
2+kkDispozice
44.5 m²Celková plocha
7.6 m²Balkon
-Terasa

A1.01.3
13 069 000 Kč
Volný
1. NPPodlaží
2+kkDispozice
47.4 m²Celková plocha
-Balkon
20.4 m²Terasa
Příslušenství
Výhodné financování
Stačí uhradit 15 %
z kupní ceny a
zbytek doplatit
až po dokončení.
Promyšlené financování, které přináší jistotu i klid při rozhodování o novém domově.
Kontaktujte nás
Zaujal vás náš projekt Delarg? Kontaktujte nás pro více informací nebo rezervaci osobní schůzky.


