Zpět na ceníkByt B2.01.4
Byt B2.01.4
Rezervace
Rezervace
7 729 100 Kč s DPH
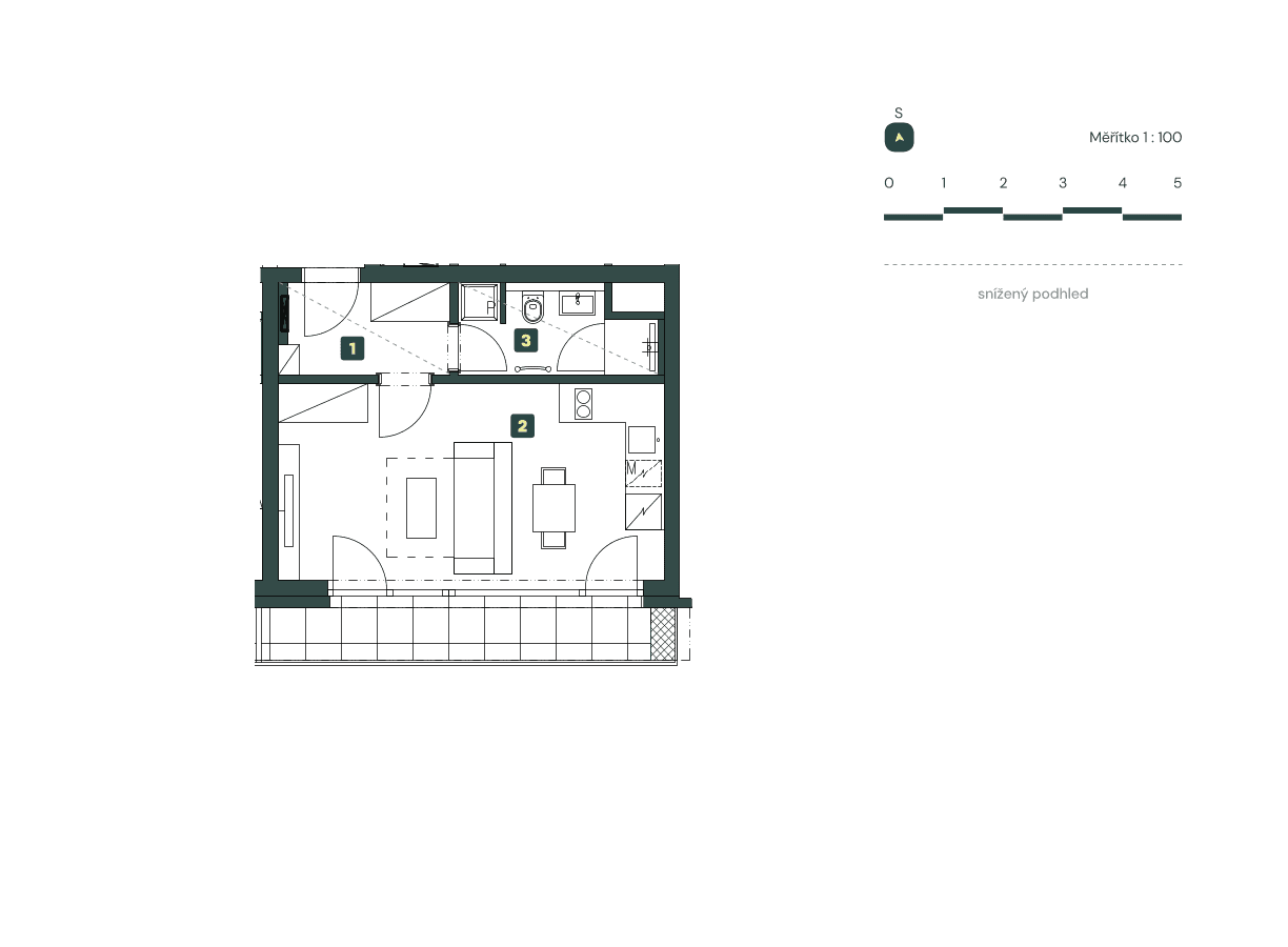
1+kkDispozice
33.1 m²Celková plocha
1. NPPodlaží
JihOrientace
PodlažíB2 | 1
Dispozice1+kk
Celková plocha33.1 m²
Užitná plocha30.8 m²
Balkon6.7 m²
KlimatizaceNE
RekuperaceANO
Zařízení ve standarduModern

Pohled

schéma podlaží

Situace

Mohlo by se vám líbit

A1.01.1
9 685 000 Kč
Rezervovaný
1. NPPodlaží
2+kkDispozice
39.6 m²Celková plocha
7.6 m²Balkon
-Terasa

A1.01.2
9 904 000 Kč
Rezervovaný
1. NPPodlaží
2+kkDispozice
44.5 m²Celková plocha
7.6 m²Balkon
-Terasa

A1.01.3
13 069 000 Kč
Volný
1. NPPodlaží
2+kkDispozice
47.4 m²Celková plocha
-Balkon
20.4 m²Terasa
Příslušenství
Výhodné financování
Stačí uhradit 15 %
z kupní ceny a
zbytek doplatit
až po dokončení.
Promyšlené financování, které přináší jistotu i klid při rozhodování o novém domově.
Kontaktujte nás
Zaujal vás náš projekt Delarg? Kontaktujte nás pro více informací nebo rezervaci osobní schůzky.


