Zpět na ceníkByt A1.03.2
Byt A1.03.2
Volný
Volný
11 848 000 Kč s DPH
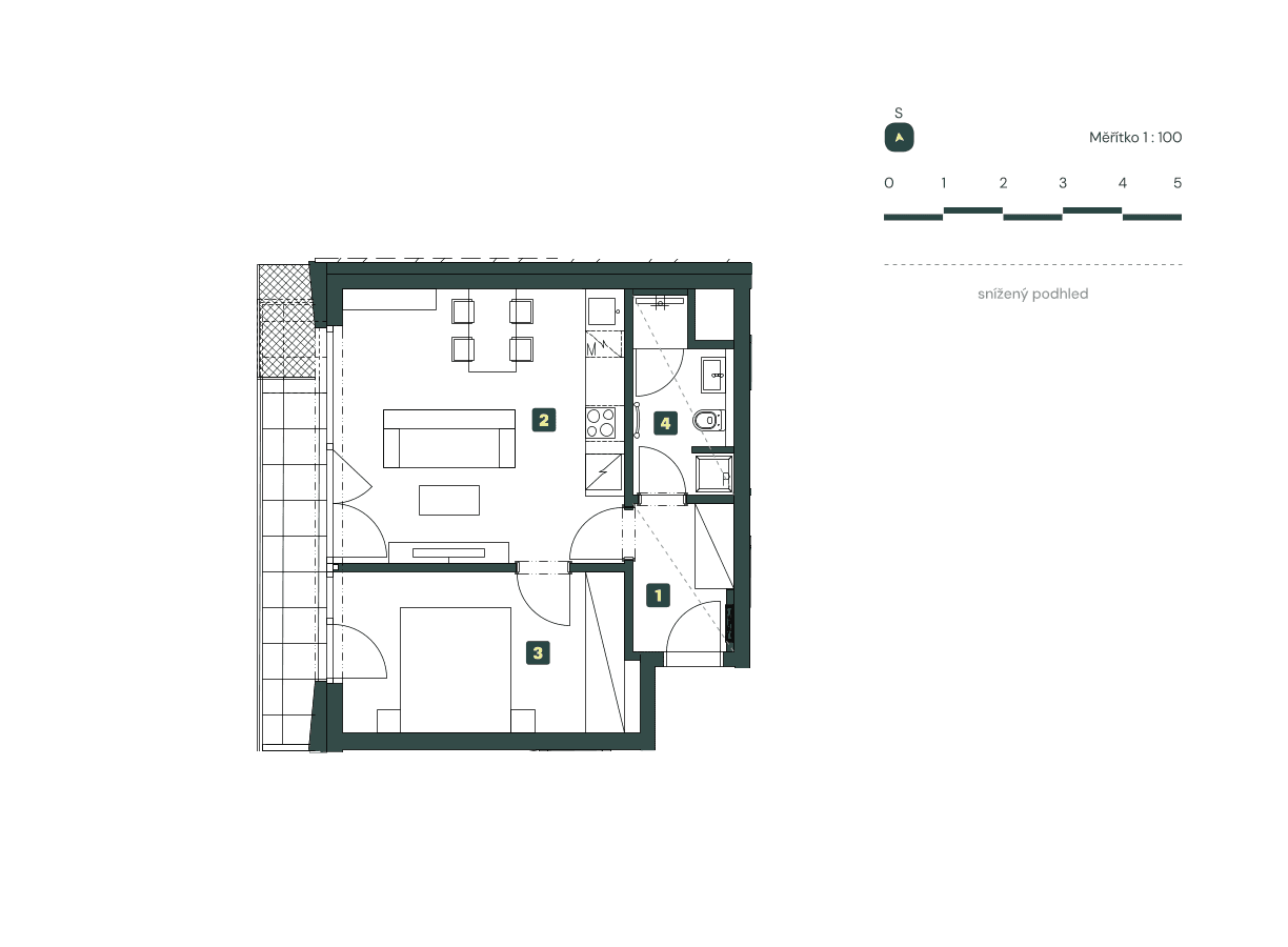
2+kkDispozice
47.7 m²Celková plocha
3. NPPodlaží
ZápadOrientace
PodlažíA1 | 3
Dispozice2+kk
Celková plocha47.7 m²
Užitná plocha44.5 m²
Balkon7.6 m²
Číslo parkovacího stání3PP-GS070
KlimatizaceNE
RekuperaceANO
Zařízení ve standarduICONIC

Pohled

schéma podlaží

Situace

Mohlo by se vám líbit

A1.01.1
9 685 000 Kč
Volný
1. NPPodlaží
2+kkDispozice
39.6 m²Celková plocha
7.6 m²Balkon
-Terasa

A1.01.2
9 904 000 Kč
Volný
1. NPPodlaží
2+kkDispozice
44.5 m²Celková plocha
7.6 m²Balkon
-Terasa

A1.01.3
13 069 000 Kč
Volný
1. NPPodlaží
2+kkDispozice
47.4 m²Celková plocha
-Balkon
20.4 m²Terasa
Příslušenství
Výhodné financování
Stačí uhradit 15 %
z kupní ceny a
zbytek doplatit
až po dokončení.
Promyšlené financování, které přináší jistotu i klid při rozhodování o novém domově.
Kontaktujte nás
Zaujal vás náš projekt Delarg? Kontaktujte nás pro více informací nebo rezervaci osobní schůzky.


